Сотовый канальный увлажнитель G1
Описание
- Сотовые увлажнители адиабатического типа G1 предназначены для увлажнения, проходящего через них воздуха. В процессе увлажнения воздух подвергается значительному понижению температуры, что позволяет использовать их в качестве охладителя
- Предназначены для общеобменной вентиляции
- Монтаж только в горизонтальном положении
- Типоразмерный ряд (по проходному сечению), см: от 40-20 до 100-50
Конструктив
- Прямоугольные присоединительные фланцы для соединения с канальной серией
- Быстросъемная панель в боковой части корпуса
- Встроенный каплеуловитель
- Левая или правая сторона обслуживания (выбирается при заказе)
- Тип корпуса – каркас из алюминиевого профиля с утеплёнными ППУ панелями
- Оснащен универсальным монтажным комплектом, для напольного (по умолчанию) или подвесного монтажа
Условия эксплуатации
- Климатическое исполнение по ГОСТ 15150-69: У3 (для эксплуатации в помещениях)
- Температура окружающей среды от -40°С до +40°С
- Температура перемещаемой среды:
- в нерабочем состоянии (при сухой кассете и осушенном поддоне) от -40 °С до + 40 °С
- Перемещаемая среда не должна содержать:
- пары и газы с агрессивностью по отношению к металлам, лакокрасочным покрытиям и изоляции выше агрессивности воздуха (кислотные, щелочные и другие агрессивные примеси)
- пыль и другие твердые примеси в концентрации более 100 мг/м3
- Обязательно наличие фильтра перед увлажнителем
- Рекомендации по качеству воды:
|
Хлориды (мг/л Cl–) |
Cl– × С<200мг/л |
|
Сульфаты (мг/л SO42-) |
SO42- ×С<300мг/л |
|
Бактериальный уровень (CFU/мл, KBE/мл) |
CFU/мл × С<300мг/л |
Принципиальная схема установки увлажнителя

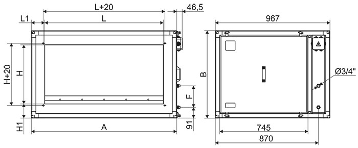
Габаритные и присоединительные размеры (мм)

|
Типоразмер |
L |
H |
A |
B |
L1 |
H1 |
F |
|
40-20 |
400 |
200 |
620 |
420 |
110 |
110 |
120 |
|
50-25 |
500 |
250 |
720 |
470 |
110 |
110 |
120 |
|
50-30 |
500 |
300 |
720 |
520 |
110 |
110 |
182 |
|
60-30 |
600 |
300 |
820 |
520 |
110 |
110 |
182 |
|
60-35 |
600 |
350 |
820 |
570 |
110 |
110 |
182 |
|
70-40 |
700 |
400 |
920 |
620 |
110 |
110 |
182 |
|
80-50 |
800 |
500 |
1020 |
720 |
110 |
110 |
182 |
|
90-50 |
900 |
500 |
1125 |
740 |
112,5 |
120 |
182 |
|
100-50 |
1000 |
500 |
1225 |
740 |
112,5 |
120 |
182 |
Технические характеристики
|
Типоразмер |
Напряжение, В |
Ток, А |
Мощность, кВт |
Расход |
Температура воздуха, ºС |
Относительная влажность, % |
Скорость воздуха в сечении, м/с |
Сопротивление по воздуху, Па |
Максимальный расход воды, |
Кабель |
Масса, кг |
||
|
на входе |
на выходе |
на входе |
на выходе |
||||||||||
|
40-20 |
220 |
0,13 |
0,029 |
780 |
34 |
14,81 |
2,24 |
80 |
3,52 |
128,37 |
0,12 |
КГ 3х1,5 |
48 |
|
50-25 |
220 |
0,13 |
0,029 |
1170 |
34 |
14,81 |
2,24 |
80 |
3,13 |
109,1 |
0,18 |
КГ 3х1,5 |
52,3 |
|
50-30 |
220 |
0,18 |
0,039 |
1430 |
34 |
14,81 |
2,24 |
80 |
2,98 |
99,72 |
0,22 |
КГ 3х1,5 |
54,3 |
|
60-30 |
220 |
0,18 |
0,039 |
1950 |
34 |
14,81 |
2,24 |
80 |
3,47 |
133,05 |
0,31 |
КГ 3х1,5 |
57,5 |
|
60-35 |
220 |
0,18 |
0,039 |
2019 |
34 |
14,81 |
2,24 |
80 |
2,94 |
100,25 |
0,32 |
КГ 3х1,5 |
58,7 |
|
70-40 |
220 |
0,43 |
0,1 |
3040 |
34 |
14,81 |
2,24 |
80 |
3,27 |
126 |
0,48 |
КГ 3х1,5 |
73,1 |
|
80-50 |
220 |
0,43 |
0,1 |
3765 |
34 |
14,81 |
2,24 |
80 |
2,75 |
90,36 |
0,59 |
КГ 3х1,5 |
78,5 |
|
90-50 |
220 |
0,43 |
0,1 |
4580 |
34 |
14,81 |
2,24 |
80 |
2,86 |
98,49 |
0,72 |
КГ 3х1,5 |
82,3 |
|
100-50 |
220 |
0,43 |
0,1 |
6450 |
34 |
14,81 |
2,24 |
80 |
3,67 |
146,57 |
1,01 |
КГ 3х1,5 |
85,5 |
Электрическая схема подключения насоса увлажнителя


Не представленные в наличии модели доступны к поставке под заказ
Оповестить о поступлении
Всю необходимую информацию также можно получить по телефону «горячей линии»
+ 7 800 200 93 96или по телефону
+7 800 505 08 67 получить консультацию